Description
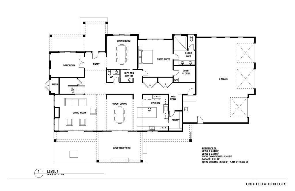
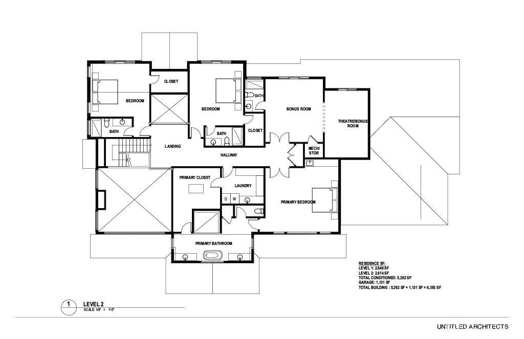
Pre-sale opportunity for a NW contemporary custom home set on 2.59 tranquil acres, plus an undivided ownership interest in 5.89 acres of adjoining protected green space. The largely level setting is surrounded by mature trees, offering privacy and seasonal beauty with the quiet rhythm of country living just minutes from Microsoft, downtown Redmond, and Woodinville Wine Country. Property is cleared, driveway roughed in, well installed, utilities arranged, reports completed, and building permit already issued with approved plans for a 5,262 SF residence and a 1,131 SF garage with shop or potential ADU—ready to build immediately. Situated on a corner lot at the end of a quiet lane, adjacent to the 800-acre Redmond watershed, near miles of trails and top-rated schools.
-
5BEDS
-
2.59ACRES
-
5BATHS
-
11/2 BATHS
-
5,262SQFT
-
$816$/SQFT
School Information
Listing information ©2026 Northwest MLS. Listing courtesy of Windermere Real Estate/East.
Mortgage Calculator is provided by BoomTown.
Description
Pre-sale opportunity for a NW contemporary custom home set on 2.59 tranquil acres, plus an undivided ownership interest in 5.89 acres of adjoining protected green space. The largely level setting is surrounded by mature trees, offering privacy and seasonal beauty with the quiet rhythm of country living just minutes from Microsoft, downtown Redmond, and Woodinville Wine Country. Property is cleared, driveway roughed in, well installed, utilities arranged, reports completed, and building permit already issued with approved plans for a 5,262 SF residence and a 1,131 SF garage with shop or potential ADU—ready to build immediately. Situated on a corner lot at the end of a quiet lane, adjacent to the 800-acre Redmond watershed, near miles of trails and top-rated schools.
IDX information is provided exclusively for consumers’ personal noncommercial use, that it may not be used for any purpose other than to identify prospective properties consumers may be interested in purchasing.The listing data relating to real estate for sale on this web site comes in part from the Northwest Multiple Listing Service. Real estate listings held by brokerage firms other than Keller Williams Spokane are marked by the "three tree" symbol; detailed information about such listings includes the names of the listing brokers. The three tree icon refers to an NWMLS listing. Data last updated 2026-02-11T00:15:09.38. The "Days on Site" data field is calculated by BoomTown and is the number of days since the listing was originally received in our system. It is not the equivalent of "Days on Market". Based on information submitted to the MLS GRID as of 2026-02-11T00:15:09.38. All data is obtained from various sources and may not have been verified by broker or MLS GRID. Supplied Open House Information is subject to change without notice. All information should be independently reviewed and verified for accuracy. Properties may or may not be listed by the office/agent presenting the information.
