Description
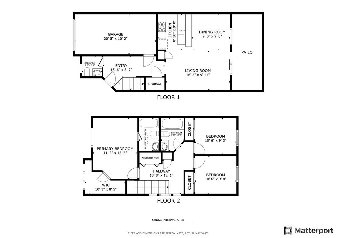
Investor & owner-occupant alert! Well-maintained, turn-key townhouse-style Duplex in prime Tacoma location offers strong rental income potential w/ zero utility expenses for the landlordonly taxes and insurance. Built in 2009, each unit features 1,279 sq ft, 3 bedrooms, 2.5 baths, in-unit laundry, a 231 sq ft garage w/ additional driveway parking, and separately metered utilities. The lower level boasts open-concept living area leading to a private fenced yard, while the upstairs includes a spacious primary suite & two additional bedrooms. Unit B is vacant & move-in ready; Unit A upgraded in 2025 with a fully renovated kitchen and new SPC flooring. Located near I-5, Tacoma Mall, and public transit. No-brainer opportunity!
-
0BEDS
-
0.07ACRES
-
0BATHS
-
01/2 BATHS
-
2,557SQFT
-
$272$/SQFT
School Information
Listing information ©2025 Northwest MLS. Listing courtesy of Best Choice Realty LLC.
Mortgage Calculator is provided by BoomTown.
Description
Investor & owner-occupant alert! Well-maintained, turn-key townhouse-style Duplex in prime Tacoma location offers strong rental income potential w/ zero utility expenses for the landlordonly taxes and insurance. Built in 2009, each unit features 1,279 sq ft, 3 bedrooms, 2.5 baths, in-unit laundry, a 231 sq ft garage w/ additional driveway parking, and separately metered utilities. The lower level boasts open-concept living area leading to a private fenced yard, while the upstairs includes a spacious primary suite & two additional bedrooms. Unit B is vacant & move-in ready; Unit A upgraded in 2025 with a fully renovated kitchen and new SPC flooring. Located near I-5, Tacoma Mall, and public transit. No-brainer opportunity!
IDX information is provided exclusively for consumers’ personal noncommercial use, that it may not be used for any purpose other than to identify prospective properties consumers may be interested in purchasing.The listing data relating to real estate for sale on this web site comes in part from the Northwest Multiple Listing Service. Real estate listings held by brokerage firms other than Keller Williams Spokane are marked by the "three tree" symbol; detailed information about such listings includes the names of the listing brokers. The three tree icon refers to an NWMLS listing. Data last updated 2025-11-14T14:16:16.177. The "Days on Site" data field is calculated by BoomTown and is the number of days since the listing was originally received in our system. It is not the equivalent of "Days on Market". Based on information submitted to the MLS GRID as of 2025-11-14T14:16:16.177. All data is obtained from various sources and may not have been verified by broker or MLS GRID. Supplied Open House Information is subject to change without notice. All information should be independently reviewed and verified for accuracy. Properties may or may not be listed by the office/agent presenting the information.
